2025-03-19
1. Hlavní rysy spínače izolovaného plynu SF6:
	
Plyn izolovaný rozváděč Přijímá SF6 jako hlavní izolační médium na hlavní jednotce 10 kV až 35 kV. Při konstrukci urbanizace má hlavní jednotka prstenu naplněného plynem SF6 výhody pro kompaktní a modulární design. Široce přijímá na městskou energetickou síť, železniční tranzit, nový energetický průmysl a průmyslové podniky.
	
1.1 Modulární design spínače izolovaného plynu SF6
	
TheHlavní jednotka prstence SF6 Má hlavně C (panel kabelového přepínače), V (vakuový obvod jistič), D (přímý připojení kabelu), DE (přímé připojení kabelu s uzemňovacím panelem), F (panel odpojení přepínače) a M (měřicí panel).
Ve skutečných případech jednotka C a V nabízí kontrolu a ochranu pro zadávání a výstupní kabelové elektrické vedení. Kromě funkce provozu zatížení má jednotka V větší funkci při odříznutí proudu zkratu a zatížení proudu. Jednotka M vybavuje měření CT a PT a energetický měřič. Normálně má šířku 800 mm, která je stejná jako aKyn28-12. Jednotka D a DE se používá pro zvýšení výšky kabelu ze země na horní část hlavní jednotky prstence SF6. Kromě toho jednotka F se také používá při zadávání a výstupu, ale uživatelé terminálu upřednostňují přijetí V jednotce místo jednotky F, protože ovládací zařízení je složitější.
	
1.2 Kompaktní návrh rozváděče izolovaného plynu SF6
	
Normálně je dimenze jednotky C nebo V w*h*d = 371*1800*750 (mm), vstupní nebo výstupní panel Kyn28-12 je W*H*d = 800*2300*1500 (mm). Není pochyb o tom, že hlavní jednotka prstenu SF6 má konkurenceschopnější pro logistiku a náklady na půdu. Kromě toho má spínač izolovaný plyn SF6 nižší náklady na materiál než KYN28-12 jako kompaktní navrhování.
	
	
2. Strukturální s Cheme of a SF6 plyn izolovaný spínač
	
V plynovém izolovaném rozváděči má hlavně plynovou nádrž SF6, hlavní spínač a jistič, systém přípojnic, ovládací zařízení a sekundární systém řízení a ochrany.
Plonová nádrž SF6 přijímá 201 nebo 304 nerezové oceli, z níž je roční úniková míra nižší než 0,1%, která je navržena jako plně utěsněná a izolovaná. Zajišťuje služby bez údržby déle než 30 let.
Je to podobné jako aAir izolovaný rozváděč že hlavním spínačem a jističem ve vstupním a výstupním panelu je spínač uzemnění, přepínač odpojení, vypínač zatížení a vakuový jistič pro řízení a ochranu napájecích systémů.
V jedné společné nádrži SF6 by mohla integrovat 7 modulárních jednotek na maximum 10 kV energetického systému. Jinak je pro rozšíření nezbytný připojovací kabel a kabelový zástrčka. V jedné společné tank jsou však modulární jednotky spojeny měděnou přípojnicí.
Systém sekundárního řízení a ochrany má funkci pro monitorování hodnotového napětí a proudu pro ochranu hlavní jednotky prstence SF6 před selháním systému. Mezitím také podporuje automatizaci, dálkové ovládání, sběr dat a přístup k systému SCADA. Kromě toho hlavní jednotka prstence SF6 také poskytuje pomocné napájení, aby se zajistilo normální provoz řízení a přenosu signálu.
	
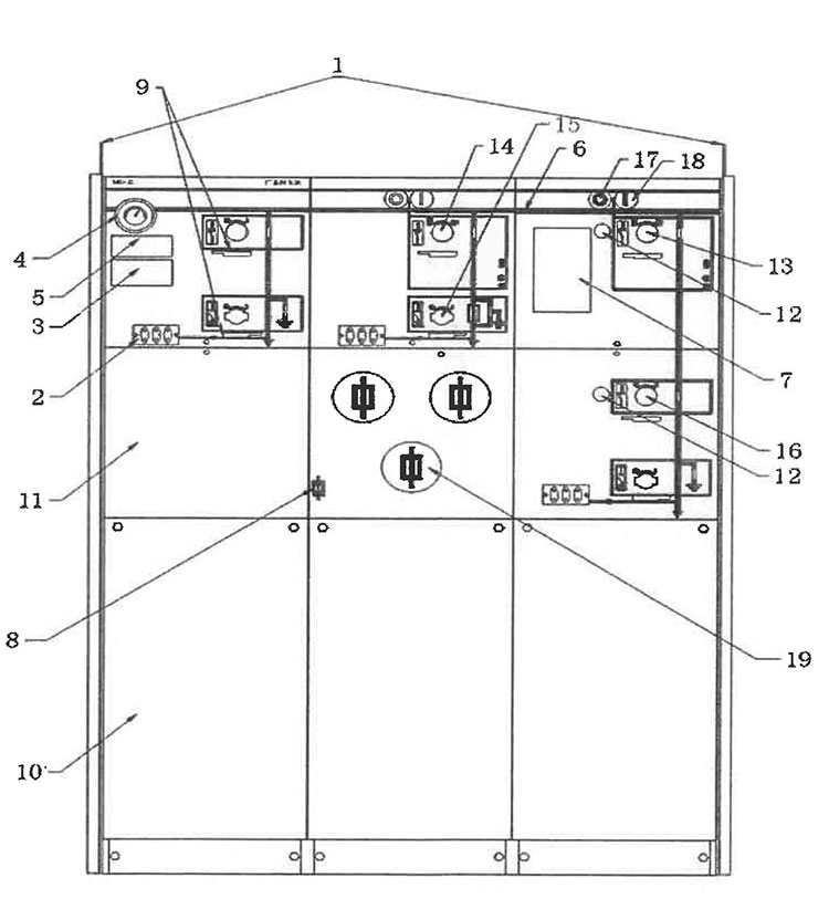
2.1 SF6 Plyn izolovaný čarodějnic.
	
	  
 
	
| 1. zvedací prsten | 2. Živý indikátor | 3.Kabilní indikátor poruchy | 
| 4. Měřič tlaku plynu | 5. Deska se sériovým číslem | 6. Kresba s jedním řádkem | 
| 7. Self-poháněné relé | 8. Indikátor foukaného pojistky | 9.Padlock | 
| 10. Kabelová místnost | 11. instalační místnost RTU211 | 12. skříňka | 
| 13. Operační otvor pro jistič | 14. Operace spínače zatížení | 15. Operační díra pro operace uzemňovacího spínače | 
| 16. Operace izolačního spínače | 17. Tlačítko Trip | 18. Tlačítko uzavřené | 
| 19. Pojistka | 
 | 
 | 
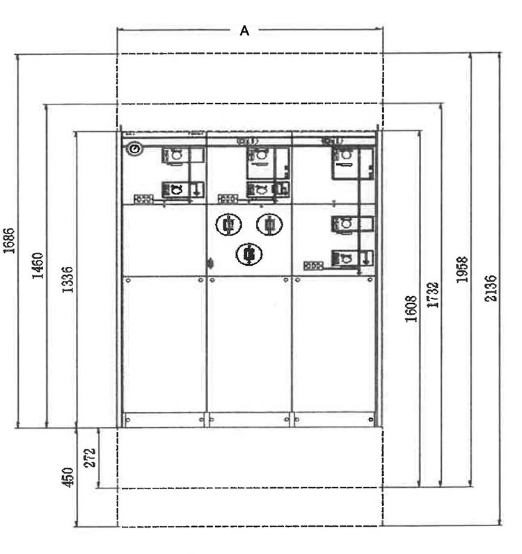
2.2 Vnější rozměry hlavní jednotky prstenu SF6 :
	
	  
 
| Jednotka | A | 
| 1 buňka | 371 | 
| 2 buňka | 696 | 
| 3 buňka | 1021 | 
| 4 buňka | 1346 | 
| 5 buňky | 1671 | 
| 6 buňky | 1996 | 
2.3 Standardní sólení a extension m odules :
	
	 
 
	
| C: kabelový spínač | F: Kabelový spínač s pojistkou | 
| DE: Kabelové spojení režiséra s uzemněním | V: Vysavač jističe | 
| D: Kabelové připojení ředitele | M: Měřicí modul (izolace vzduchu) | 
3. Parametr SF6 Plyn izolovaný rozvaděč
	
| 1. Tlak plynu SF6: | Relativní tlak při 20 ° C je 0,03 MPa | 
| 2. Roční míra úniku plynu: | ≤0,01% | 
| 3. Úroveň ochrany: | IP67 | 
| 4. Normální podmínky provozního prostředí: | -35 ℃ do+40 ℃ | 
| 5. Maximální průměrná relativní vlhkost (při 25 ° C): | Denní průměrná hodnota ≤ 95%; Průměrná hodnota měsíce ≤ 90% | 
| 6. Nadmořská výška: | ≤ 1000m | 
| 7. Intenzita zemětřesení: | Úroveňⅷ |